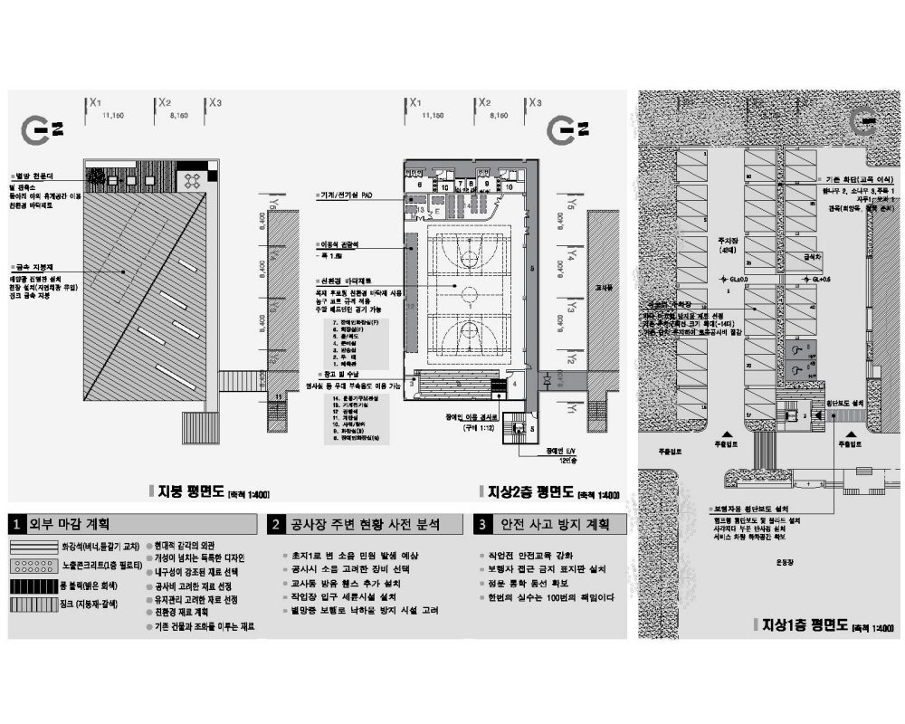
/user/s/sedamarchi/editor/2301/4d9787f23a8af3243a4118c065c44a31_1672761291_6206.jpg 이미지크게보기