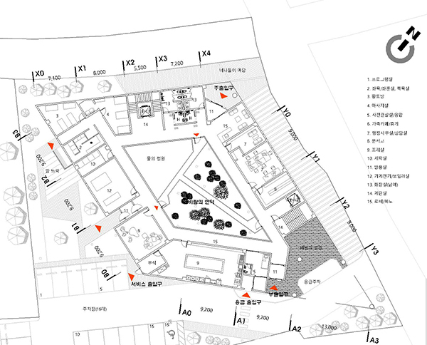
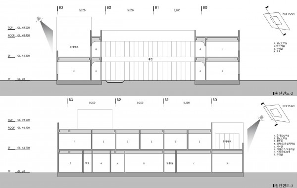
예천공공산후조리원

본문

thumb

Site Location : Gyeongsangbuk-do, Yecheon-gun, Dongbon-ri


Site area : 3,003 ㎡


Gross floor area : 1,482 ㎡

Structure : RC 

Exterior material : base panel, clay brick, metal louver



9385e0d6943a6cb27df8c3f369037e05_1699432152_6337.jpg



9385e0d6943a6cb27df8c3f369037e05_1699432162_6709.jpg



9385e0d6943a6cb27df8c3f369037e05_1699432173_1526.jpg

9385e0d6943a6cb27df8c3f369037e05_1699432223_1949.jpg

thumb9385e0d6943a6cb27df8c3f369037e05_1699432238_8608.jpg

thumb9385e0d6943a6cb27df8c3f369037e05_1699432238_9579.jpg

thumb9385e0d6943a6cb27df8c3f369037e05_1699432239_0275.jpg

thumb9385e0d6943a6cb27df8c3f369037e05_1699432239_1014.jpg

thumb9385e0d6943a6cb27df8c3f369037e05_1699432243_7779.jpg

thumb9385e0d6943a6cb27df8c3f369037e05_1699432243_8821.jpg















 

전화문자카톡관리자로그인