소소가
관련링크
본문
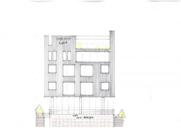
새로운 도시가 생긴다.
새로운 공간이 만들어진다.
애초 우주 속에 공간은 하나에 지나지 않았다.
다만 건축가가 그 공간을 세로로 가로로 잘게 쪼개어 필요한 만큼 나눈 것뿐이다.
감일 지구 새 도시 한 켠에 새 공간을 만들어본다.
뿜뿜 멋지게 우뚝 서기보다 아버지의 높이로 동네를 지키는 키 큰 미루나무처럼 단아한 건물이고 싶다.
누구보다도 열정적인 건축주.
세심한 손길이 가끔은 번거롭게도 하지만 이 또한 건축관계자의 하나인 건축주의
소중한 의견이기에 좋은 공간의 형성에 어마어마한 힘이 된다.
비가 와도 가을이 되어도 커피빛 벽돌은 늘 도시를 미소짓게 한다.
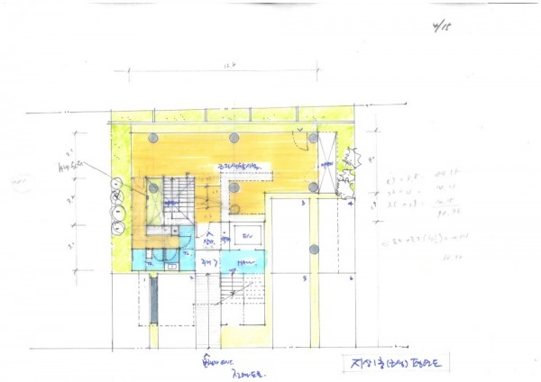
Site Location : Hanam. Gamil Housing zone
Site area : 245 ㎡
Gross floor area : 490 ㎡
Structure : RC






