ZIP
관련링크
본문
하남에 온지 5년여가 되어갈 때 쯤 우연한 기회에 건축과를 전공한 건축주를 소개받았다.
민첩함과 능력을 갖춘 건축주는 언뜻 보기에도 까다로와 보였지만 어쩌면 좋은 집을 만들기 위한 조건을 가지고 있었다.
몇몇 다른 건축사들과 보이지 않는 경쟁을 하고 있어서 은근히 승부욕도 생겨났다.
작은 스케치 하나가 건축주에게 잘 보였는지 그로인해 설계를 하게 되었다.
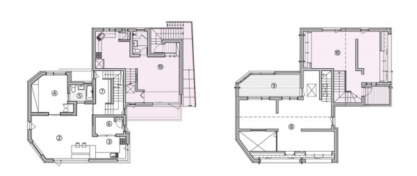
부모님과 함께 살 두 집, 그리고 남은 두 집은 임대 세대.
전원주택은 아니지만 땅과 하늘을 닿을 수 있는 공간을 만들어주는 것은 이 집을 살리는 최대의 관전 포인트.
그래서 생겨난 ‘선큰’과 ‘옥상 테라스’. 도시인이라면 누구나 꿈꾸던 공간.
새벽을 달리는 밤하늘의 작은 별과 조우하는 것은 엄청난 행복일 것이다.
순수함의 ‘백’과 따스함의 ‘갈’색이 만난 순진한 조화가 이 집을 참으로 돋보이게 한다.
이 집의 이름 ‘ZIP'은 꼬마 아들과 함께 건축주가 지은 이름이라 참으로 남다르다.
Site Location : Hanam. Misa Housing zone
Site area : 262 ㎡
Gross floor area : 282 ㎡
Structure : RC








