에이트_BIEW
관련링크
본문
40여년이 지난 여인숙.
이제 역사적 허물을 벗고 도시를 향하고자 한다.
날렵한 매력을 하늘 로 쭈쭈욱 공간을 쌓아보리라.
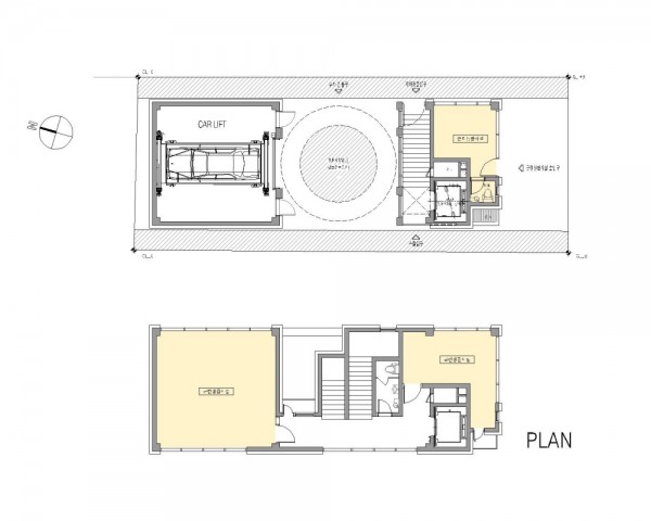
8M의 비좁은 대지에 겨우 구겨넣듯 하지 말고 은하철도 999의 메텔의 몸매처럼 세련미로 현대미로 승부하리라.
때론 뽐내고 싶을 때는 당당해 질 필요가 있겠지.
시간은 이 오래된 집을 버린 것이 아니라 기적처럼 새 집을 잉태한 것이다.
소소한 공간 속에 도시인 수십 명이 움을 트고 보금자리하는 날 새로운 빛이 창가에 흘러내린다.
건축주의 긴 한숨이 이제는 한 ‘숲’이 되어 이 땅 위에서 미소짓게 할 것이다.
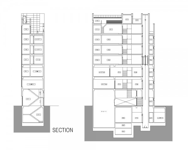
Site Location : Seoul jungranggu myunmokdong
Site area : 155.15 ㎡
Gross floor area : 592 ㎡
Structure : RC






