제주 김녕리
관련링크
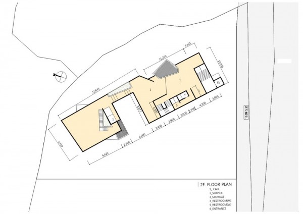
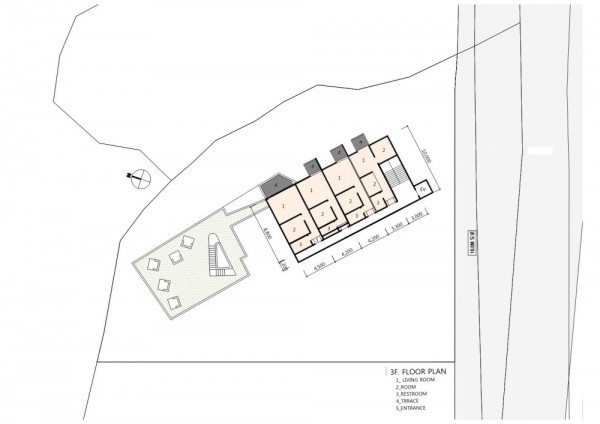
본문
지구상의 파란색 중 가장 큰
바다.
그 푸름을 창 안으로 들인다는 건 획기적인 일이다.
굳이 요란하게 하지 않더라도 가까이 있는 것만으로도 행복하다.
마치 좋은 사람 곁에 있는 것과 똑같다.
제주스러움을 만든다는 것과 현대적인 모던함만 풀어낸다면 이것은 성공적인 프로젝트 일 것이다.
<파란>에는 역시 맑은 회색과 흰색이 제격이겠지.
mass는 바다를 마주하게 열어주고나면 나머지는 그 자체가 이미 완성이리라.
Site Location : Jeju_city gujoa_ub kimnyoungri
Site area : 1,600 ㎡
Gross floor area : 1,065 ㎡
Structure : RC






