천천초다목적체육관
관련링크
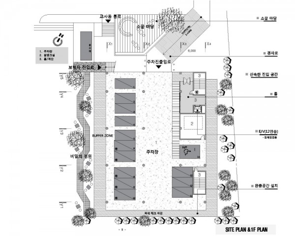
본문
줄어드는 학생수 그러나 사라지고 있는 운동장.
땅을 밟을 시간조차 어려운 우리 아이들.
공놀이를 하고 뻘뻘 흘려야 할 땀은 잊혀진지 오래.
덩그러니 이제 체육관이 넓은 운동장을 잠식하고 만다.
공간을 만드는 것과 없애는 것을 동시에 하는 것은 참 아이러니하다.
건축이란 사람을 위하는 것이거늘 한편으로는 사람의 행동을 제약하는 것이라니 할 수가 없다.
아니 알지만 시대의 흐름을 개탄할 뿐 이것마저도 흥미로울 뿐.
빈자리를 찾아 작은 공간을 차곡차곡 맞춰본다.
그러나 한 결 같이 변하지 않는 건축가의 마음은 늘 아이들의 가슴에 있다는 것이다.
진정한 건축은 늘 내면에 있는 것이니까.
Site Location : Suwonsi jangangu chunchundong
Site area : 13,002 ㎡
Gross floor area : 12,049 ㎡
Structure : RC






