루마루398
관련링크
본문
사람이 걷는다.
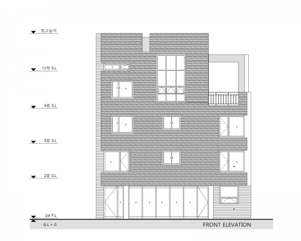
도시의 품격은 건물과 길이 만든다.
감일은 새로운 마을이 만들어지고 있다.
세월의 흔적을 안은 지난 추억은 이미 마음속에 묻었다.
새롭게 생겨난 길 위에 집으로 들어오는 길은 아직은 어수선하다.
준공 후 옆에는 학교 신축이 한창이고 아직 짓지 않은 땅들은 잡풀을 너저분하게 키워내고 있다.
시간이 필요하다.
세련된 가족에 어울리는 근사한 공간. 창을 타고 들어오는 바람은 도시의 향기를 품어 온다.
늘 그렇듯이 집이 완성될 때 느끼는 마음은 기쁨과 아쉬움이 항상 공존한다.
설계기간 동안 긴 미팅을 꼼꼼히 함께한 가족들의 수고가 고스란히 담겨 있는 집.
늘 그 공간에서 행복하시길 바란다.
Site Location : Hanam. Gamil Housing zone
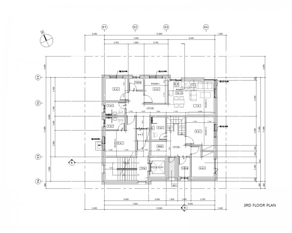
Site area : 240 ㎡
Gross floor area : 433 ㎡
Structure : RC






