추문재

본문

thumb

이 프로젝트는 사룡리라는 북한강변 급경사진 대지에 E대학 교수와 함께 진행되었다. 

이곳은 마을과 함께 이웃과 함께 사는 그 일반적인 집이 아니라 오롯이 혼자만의 공간이다. 

이웃이 찾는 집이 아니고 바쁜 일상을 탈출하여 ‘쉼’과 ’여가’를 위하여 존재하는 공간이다. 

흐르는 강도 나를 위하여 존재하고 불어오는 강바람도 나를 쉬게 하면 된다. 

언덕을 넘은 계절이 지붕을 터고 들어오면 한 잔의 술과 노래 한 소절이면 충분하다.

물보라를 내며 달리는 도시인들의 고함소리에 이미 희열을 느끼고도 남음이 있다. 

사람이 목적이 될 수는 없지만 집과 공간은 사람의 목적으로 역할을 하게 된다. 

그래서 확실한 목적의 공간으로 한 장 한 장 돌이 놓아질 때에 창조의 기쁨도 함께 쌓여가는 것이리라   


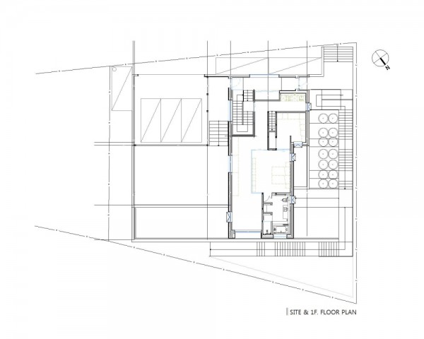
Site Location : Gyoungki Gapyoung Saryoungri  

Site area : 698 ㎡

Gross floor area : 556㎡

Structure : RC 

Exterior material : Stone, Wood, Glass block

thumb4d9787f23a8af3243a4118c065c44a31_1672739393_0796.jpg

thumb4d9787f23a8af3243a4118c065c44a31_1672739393_0308.jpg

thumb4d9787f23a8af3243a4118c065c44a31_1672739402_9287.jpg

thumb4d9787f23a8af3243a4118c065c44a31_1672739402_995.jpg

thumb4d9787f23a8af3243a4118c065c44a31_1672739403_0494.jpg

thumb4d9787f23a8af3243a4118c065c44a31_1672739403_1017.JPG

thumb4d9787f23a8af3243a4118c065c44a31_1672739403_1572.JPG

thumb4d9787f23a8af3243a4118c065c44a31_1672739403_2242.JPG

thumb4d9787f23a8af3243a4118c065c44a31_1672739403_2809.JPG

thumb4d9787f23a8af3243a4118c065c44a31_1672739403_3465.JPG

thumb4d9787f23a8af3243a4118c065c44a31_1672739409_5834.JPG

thumb4d9787f23a8af3243a4118c065c44a31_1672739409_6566.JPG

thumb4d9787f23a8af3243a4118c065c44a31_1672739409_7135.JPG

thumb4d9787f23a8af3243a4118c065c44a31_1672739409_7776.JPG

thumb4d9787f23a8af3243a4118c065c44a31_1672739409_8336.JPG

thumb4d9787f23a8af3243a4118c065c44a31_1672739409_9013.JPG

thumb4d9787f23a8af3243a4118c065c44a31_1672739409_9657.JPG

thumb4d9787f23a8af3243a4118c065c44a31_1672739415_8735.JPG

thumb4d9787f23a8af3243a4118c065c44a31_1672739415_9289.JPG

thumb4d9787f23a8af3243a4118c065c44a31_1672739415_9861.JPG

thumb4d9787f23a8af3243a4118c065c44a31_1672739416_0432.JPG

thumb4d9787f23a8af3243a4118c065c44a31_1672739424_139.JPG

thumb4d9787f23a8af3243a4118c065c44a31_1672739428_3164.jpg

thumb4d9787f23a8af3243a4118c065c44a31_1672739428_393.jpg

thumb4d9787f23a8af3243a4118c065c44a31_1672739428_4446.jpg

thumb4d9787f23a8af3243a4118c065c44a31_1672739431_6063.jpg

thumb4d9787f23a8af3243a4118c065c44a31_1672739431_6718.jpg 


전화문자카톡관리자로그인