금곡동 카페
관련링크
본문
사람이 집을 떠나는 이유는 단 하나.
나를 잊고 싶을 때다.
결국 마음을 체우기 위하여 도시를 떠나 길을 나선다.
마치 고향을 찾는 어른처럼 이젠 젊은 청년들도 자신을 위하여 작은 자리를 만들려 한다.
이럴 때 건축가의 행복이랄까 도움이 되어 감사할 따름이다.
내가 만든 의자에 내가 만들어준 동선을 따라 사람들이 즐겁게 움직일 때에 자긍심을 갖게 된다.
이런 걸보면 천직이 아닐까 싶지만 늘 완벽이란 있을 수 없기에 노력하고 또 노력해야 한다.
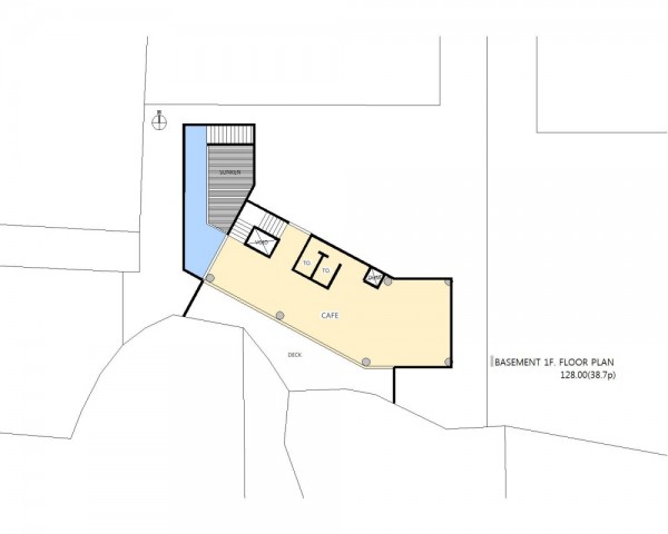
Site Location : Sungnam Bundang gumgokdong
Site area : 656 ㎡
Gross floor area : 587 ㎡
Structure : RC






