CLOUD/feel
관련링크
본문
이보다 더 작을 수 있으랴.
나는 이 사직동 인근에서 학창시절 대부분을 보냈다.
내 친구 중에는 연탄집 아들, 과학을 좋아하던 지금은 의사가 된,,
천안에서 이사와 남자아이들의 로망이던, 동네 골목에서 공차기를 하던 친구, 친구, 친구.
이 자리에서 내가 건축가가 되어 집을 지을 줄이야.
이 골목에서 친구가 지나가도 모를 세월을 흘려보냈다.
이 골목 끝 화장실도 없는 구닥다리 건물 3층이 내 사무실이었다.
그것도 모르고 찾아온 건축주는 그래도 이 따에 작은 건물하나를 올리고야 말았다.
(우여곡절 끝에) 그래 사는 것에 스토리가 없으면 안되지.
그런 추억을 가지고 이집은 사직로 모퉁이를 아직도 잘 지키고 있다.
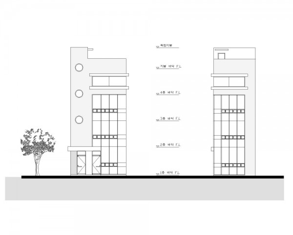
계단과 그 두배 정도의 공간이 전부인 이곳은 지금도 밤마다 불이 켜져있다.
필운동 골목은 나의 건축 이야기의 시작이자 내 사색의 동반자이다.
Site Location : Seoul Jongro pilundong
Site area : 53.6 ㎡
Gross floor area : 120 ㎡






